HOUSES IN ORENSE STREET

Origamic house
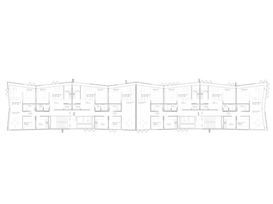
We manipulated the modern prism and its unique gaze geometry incorporating obliquity as an aperture of orientation. The new polyhedral facet is drawn thinking of its most domestic use, of the best orientation for each of the dwellings. The domestic volume is wrapped in a vitreous skin that thickens into a second metal skin, with origamic results.

1/3
built